仿古建筑設計圖集
2011-04-11 12:47:07 來源: 瀏覽次數:
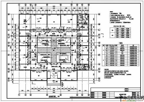
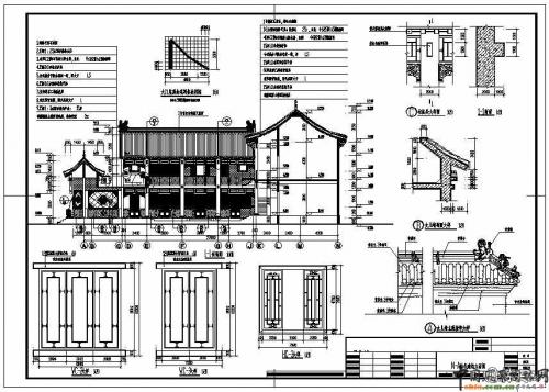
工程建筑面積約為:1200平方米、結構形式為:剪力墻結構、層數為: 2層、高度為: 12.3米、屋頂形式:青灰色筒板瓦坡屋面。
圖紙包括工程作法、門窗表、各層建筑平面、立面、剖面圖、衛生間詳圖、墻身大樣、檐口作法等,共9張圖紙。
門窗采用紅椿木或楠木制作。門窗飾面為亞光清漆。
設計功能包括:書房、子女房間、主次臥室、中庭、娛樂室、工人房等。
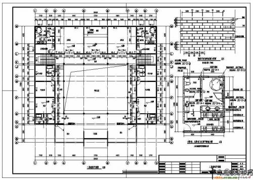
圖紙包括工程作法、門窗表、各層建筑平面、立面、剖面圖、衛生間詳圖、墻身大樣、檐口作法等,共9張圖紙。
門窗采用紅椿木或楠木制作。門窗飾面為亞光清漆。
設計功能包括:書房、子女房間、主次臥室、中庭、娛樂室、工人房等。









編輯:xiaxiaolin
凡注明“風景園林網”的所有文章、項目案例等內容,版權歸屬本網,未經本網授權不得轉載、摘編或利用其它方式使用上述作品。已經本網授權者,應在授權范圍內使用,并注明“來源:風景園林網”。違反上述聲明者,本網將追究其相關法律責任。
相關閱讀
建筑設計有時候要聽聽房子自己的意見
近日,設計權力榜在北京頒獎,諸多獲獎項目中既有日本設計師改造的北京大雜院,也有中國學者策展的城市設計檔案展覽。細細了解這兩個項目不難發現,其中蘊含的設計師、策展人關于城市與設計的思考,正切合了本屆設計權力【詳細】
深圳發布建筑設計新規 釋放建筑創作空間
為提高城市規劃建設水平,推進建筑設計的標準化和規范化,1月11日,深圳市規劃國土委發布了《深圳市建筑設計規則(修訂稿)》(以下簡稱《規則(修訂稿)》)。據悉,《規則(修訂稿)》放寬了對公共空間、建筑形體等的管控,以進一步提升【詳細】
古希臘建筑設計的七大奇跡
古希臘的七大奇跡是:帕臺農神廟、耶皮戴奧斯劇場、奧林匹亞宙斯神廟、特爾斐、羅德斯巨人像、桑托林島、克諾索斯宮。【詳細】