伊斯靈頓:珠寶盒子住宅延伸空間設計



London-based Fraher Architects have completed a house extension in Islington that is wrapped in larch batons and has a flower-covered roof.
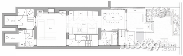
Adjoining the rear of the listed house, the timber-clad extension contains a study and a dining room with an oversized glass door to the garden.
Benches and fences lining this garden terrace are made of the same timber.
A serpent-like lamp illuminates the terrace at night, while matching orange lamps light up the new dining room beneath a rectangular skylight.
The roof over the dining room is split into two halves, which pitch in different directions and enable rainwater collection.
Modest residential extensions are common in London neighbourhoods – see our earlier stories about a house extended by just a metre and a zinc-clad extension squeezed into a wedge of land.
Photography is by Andy Matthews.
編輯:wenweihua
相關閱讀
園冶杯獲獎作品丨車公莊19號院景觀改造
設計師既是場地修繕者也是直接使用者,采用多方共謀共建的方式,以生態、健康、友好作為核心手段,修復大院環境,創造活力新生。建成后社區環境大幅度提升,社區鄰里互識,溫暖度開始回升,成為綠色創新友好的健康示范項目【詳細】
園冶杯獲獎作品丨合肥逍遙津公園改造
按照“古風古韻 生態生活”的設計原則,淡化商業、娛樂功能,力求“水清、樹綠、景美、生態優”,回歸園林藝術本源,打造合肥市民心目中的“古逍遙津”【詳細】
河北省第六屆(滄州)園林博覽會5月26日開幕
本屆園博會主題為“千里通波、大美運河”,園博園占地面積196.7公頃,規劃建設有“一帶三區”,即:運河風光帶,城市展園區、專類植物展園區、綜合服務區,建成13個城市展園和滄州坊商業街羅列其中【詳細】
首鋼園變身高端“秀場”
打造全球首發中心、首發首秀首展紛至沓來、科幻企業云集……現如今的首鋼園變身高端“秀場”,吸引科技、科幻、體育、文化、商業等產業集聚。記者近日獲悉,一季度首鋼園舉辦各類活動會展78場【詳細】



